Afdeling 38
Ellehammersvej/Millevej
Om afdeling 38
Vi bygger 17 almene familieboliger på hjørnet af Ellehammersvej og Millevej i Vadum.
Byggeriet opføres som etageejendom, hvor der i stueplan skal etableres sundhedscenter.
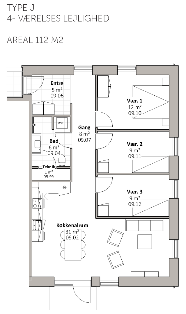
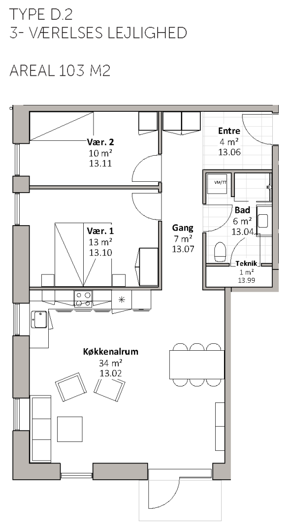
De 17 almene familieboliger varierer i størrelse fra 67 til 112 m2 og placeres på 1. og 2. sal. Boligerne er 2-, 3- og 4-rums boliger. Boligernes målgruppe er bred, da boligerne er egnet for både unge og ældre, børnefamilier mv. Byggeriet indeholder elevator. Udenfor skabes der naturlige samlingssteder, herunder et hyggeligt gårdrum med grønne og rekreative områder.
Arkitekturen og farverne er udvalgt for at afspejle omgivelserne og skabe en balance mellem nyt og gammelt. Der er i materialevalg fokus på at sikre en lang levetid og projektet tager udgangspunkt i Vivaboligs Byggemanual for at sikre materialer i høj kvalitet.
Sundhedscenteret, en integreret del af bebyggelsen, vil huse en bred vifte af sundhedstjenester til lokalsamfundet, herunder et lægehus og en sundhedsklinik, der begge vil være tilgængelige for lokalbefolkningen.
Læs mere om byggeriet her.
dig op til en bolig?
Ejendomskontor:
Store Tingbakke 72
9310 Vodskov
Ekspedition:
Mandag kl. 8.00-9.00
Onsdag kl. 8.00-9.00
Fredag kl. 8.00-9.00
Telefontider:
Mandag kl. 7.30-15.00
Tirsdag kl. 7.30-15.00
Onsdag kl. 7.30-15.00
Torsdag kl. 7.30-15.00
Fredag kl. 7.30-14.00
Teamleder
Klaus Bonde
Telefon: 9813 2504
E-mail:
team1@vivabolig.dk








