Afdeling 24
Caroline Smiths Minde, Saxogade
Om afdeling 24
Kort og godt:
- Centralt beliggende i Vestbyen i Aalborg
- Ældreboliger i ældre bygning med masser af historie og charme
Boligerne ligger i Vestbyens nok smukkeste ejendom "Caroline Smiths Minde". Ejendommen er fra århundredskiftet, men er renoveret og ombygget i 2000.
Her har du kort afstand til centrum, svømmehal, stadion, travbane, offentlig transport og indkøbsmuligheder. Derudover ligger der er to aktivitetscentre og en kirke i området.
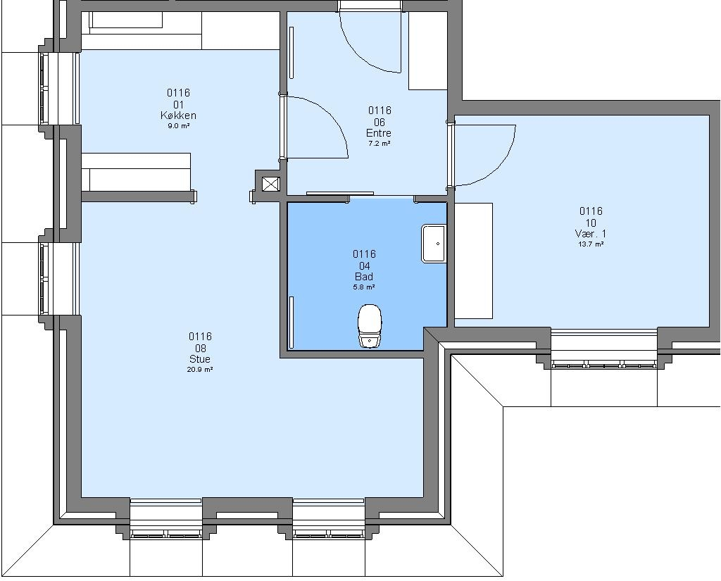
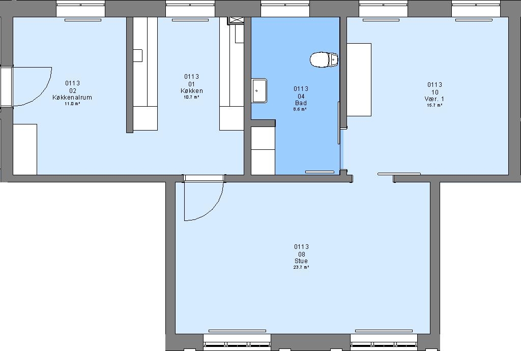
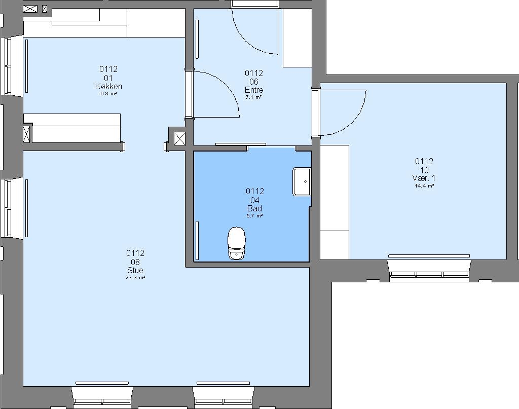
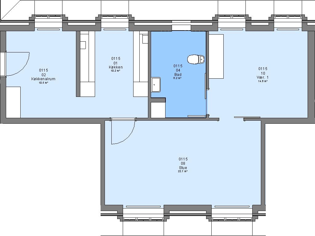
BILLEDER: Billederne er eksempler på de boligtyper, vi har i denne afdeling. De enkelte boliger kan variere.
dig op til en bolig?
Ejendomskontor:
Frejaparken 93 og
Thomas Boss Gade 12B
9000 Aalborg
Ekspedition:
Ring for aftale
Telefontider:
Mandag kl. 7.30-15.00
Tirsdag kl. 7.30-15.00
Onsdag kl. 7.30-15.00
Torsdag kl. 7.30-15.00
Fredag kl. 7.30-14.00
Teamleder
Christian Toft
Telefon: 9816 0465
E-mail:
team5@vivabolig.dk











